
¼ò½é
1¡¢³ÇÕò¡¢ÖÐС³ÇÊÐÉú»î·à±ã¡¢(ÎÛÄà)¼¯ÖÐÊÕ¼¯Ô¤´¦Àí(ÈçÔË·à³µÓɳÇÊл·ÎÀ²¿ÃŹÜÀí)£¬×°³µºóÔËÖÁ¼¯ÖÐÇãµ¹µã£¬Ò»°ã¶¼Çãµ¹ÖÁ³ÇÊÐÎÛË®¹ÜµÀ¡£ÎªÁË·ÀÖ¹¹ÜµÀ¶ÂÈû¼°Î¬»¤¹ÜµÀÁ¼ºÃÔËÐУ¬Ê¹Ó÷à±ãÒ»Ì廯Ԥ´¦Àí×°Ö㬸Ã×°ÖðüÀ¨À¬»øÇå³ý¡¢³ýɰ¼°¿é×´ÎÞ»úÎïÖʵÈÔ¤´¦Àí¹¦ÄÜ£¬ÊÊÓÚ»·ÎÀ²¿Ãż°³ÇÊÐÅÅË®¹ÜÀí²¿Ãŵķà±ã¼°ÎÛÄàÔ¤´¦Àí¡£
2¡¢Ä¿Ç°³ÇÊУ¬ÓÈÆäÊÇÖÐС³ÇÊкͳÇÕòµÄÉú»î·à±ã»òÎÛÄ༯ÖÐÇãµ¹ÓÚ³ÇÊÐÎÛË®¹ÜµÀ£¬ÍùÍùÓÉÓÚÔÓÎï¡¢À¬»ø¡¢³Áɰ¡¢½¨ÖþÀ¬»øµÈδµÃµ½Ô¤´¦ÀíÇå³ý¶ø¼«Ò×Ôì³É¹ÜµÀ¶ÂÈûD=1.0mÒ²Óб»¶ÂµÄÇé¿ö¡£
3¡¢ËùÍÆ¼öµÄ·à±ã(ÎÛÄà)Ò»Ì廯Ԥ´¦Àí×°Ö㬾ÍÊǼ¯À¬»øÇå³ý¡¢³Áɰ¡¢É¸É°¼°ÇåɰµÈ¹¦ÄÜÓÚÒ»Ì壬ÄÜ´ïµ½Ô¤´¦ÀíµÄÄ¿µÄ£¬Ð§¹ûºÃ¡¢½Ï³¹µ×µØÇåÏ´·à±ã¡¢ÎÛÄ࣬¾×Ô¶¯»¯²Ù×÷¹ý³Ì£¬´Ó¶ø½µµÍÀͶ¯Ç¿¶ÈºÍά»¤»·¾³ÎÀÉú£¬²¢ÇÒ¸Ã×°ÖÿÉÒÔ×öµ½ÍêÈ«ÃܱշÀÖ¹³ôÆøÍâÒ磬ͬʱͨ¹ý¼·Ñ¹É¸Çå¼°¼õСɸÇåµÄÖØÁ¿¼°Ìå»ý´Ó¶ø½µµÍ´¦ÀíÇåÔË·ÑÓã¬Çå³ýÀ¬»ø¡¢³ÁɰÓëʯ¿éµÈÔÓÎïÒÔÈ·±£ÎÛË®¹ÜÍøÏµÍ³¼°³ÇÊÐÎÛË®µÄÕý³£ÔËÐС£
4¡¢ÕâÖÖ´¦Àí×°ÖÃÊǸֽṹ¹¹Ô죬¸ù¾Ý²»Í¬¹æ¸ñ£¬¿Éͨ¹ýµÄ´¦ÀíÁ¿´ï100m3/h£¬ÎªÁ˵õ½¸ßµÄÈ¥³ýЧÂÊ£¬À¬»øÇå³ýÆ÷ϸ¸ñÕ¤µÄ¾»¼ä¾àÓÉ5-20mm²»Í¬¹æ¸ñ¡¢¸ñɸ¼ä϶Ϊ0.25ÖÁ5mmµÄ²»Í¬¹æ¸ñ£¬ÎªÁË·Àֹϸ¸ñÕ¤ºÍ¸ñɸÔÚÔËÐйý³ÌÖжÂÈû£¬Òò´ËÒªÓÃÏ൱ÊýÁ¿µÄË®³åÏ´ÇåÏ´µÄ£¬¶ø·à±ã»òÎÛÄàµÄ½øÈ룬ÍùÍùҪͨ¹ýÕæ¿ÕÎüÄà³µ»òÆäËûÇåÔË×°ÖÃʹÆäÁ÷ÈëÒ»Ì廯װÖã¬Í¨¹ýÒ»Ì廯Ԥ´¦Àí×°Ö㬽«´ó´ó½µµÍºÍ¼õÇá³ÇÊÐÎÛË®¹ÜµÀ¼°ÎÛË®³§µÄÀ¬»ø¡¢³Áɰ´¦Àí¸ººÉ¡£
5¡¢Ô¤´¦Àí×°ÖÿÉÒÔ¸ù¾ÝÒªÇó£¬Óзà±ã(ÎÛÄà)½ÓÊÕ×°Ö㬴øºóÐø³ÁɰµÄ·à±ã(ÎÛÄà)½ÓË®×°Ö㬴øÁªºÏÀ¬»øÇå³ý¡¢³ÁɰºÍɰ·ÖÀëµÄÒ»Ì廯װÖÃÈý´óÀ࣬ÓÉ´ËÅÉÑ¡³ö¶àÖÖ¹æ¸ñºÍÐͺš£
Ò»Ì廯´¦Àí×°ÖÃÆ½Ãæ³ß´ç¿ØÖÆÍ¼Ê¾
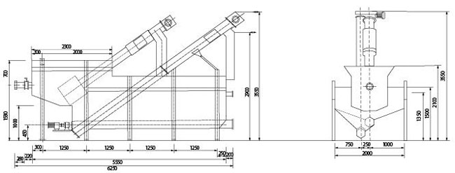
¹Ì¶¨Ê½¡¢Òƶ¯Ê½·à±ãÔ¤´¦Àí×°Öóߴçͼ

´øÀ¬»øÇå³ý¡¢É°³ÁµíºÍɰˮ·ÖÀë²¢³ýɰһÌ廯ÐÍ·à±ãÔ¤´¦Àí×°Öóߴçͼ

¼¯À¬»ø¡¢³ýɰ¡¢É¸·ÖΪһÌåµÄÎÛË®¡¢ÎÛÄà¡¢·à±ã¼¯Öд¦ÀíÕ¾(Åä¹Ì¶¨Ê½»òÒÆ¶¯Ê½Ô¤´¦ÀíÒ»Ì廯װÖÃ)




